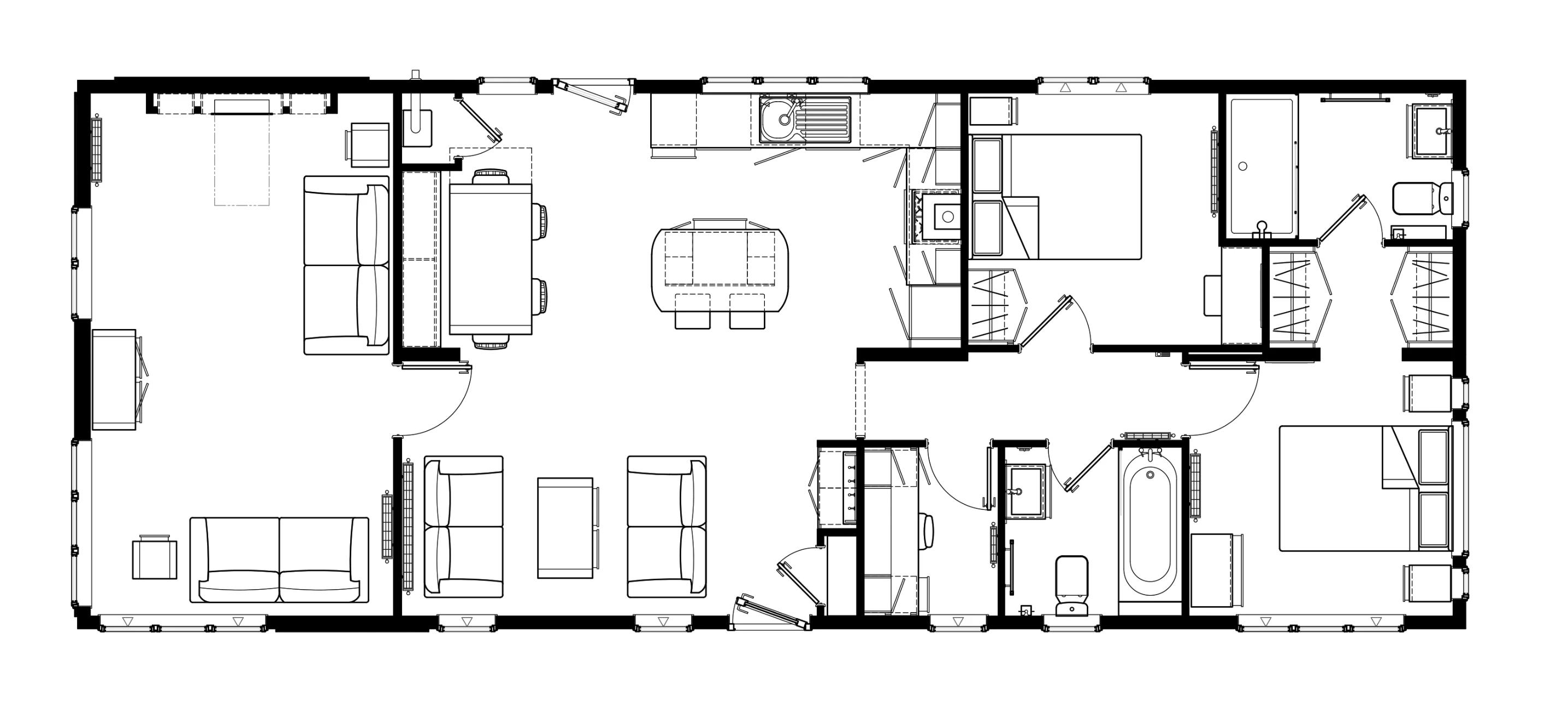
The Vision is a contemporary and stylish park lodge with an innovative floor plan that centers around an open-plan living space, but also has the benefit of a separate lounge.
To the exterior, large picture windows and a combination of Almond Stucco and Timberwoolf CanExel cladding make the Vision feel very contemporary, and a feature front door under a dormer makes an impressive entrance.
Inside, the Vision features vaulted ceilings to the lounge and central open-plan living space, giving a light and spacious feel. The interior design is contemporary, fresh and stylish with stand-out features such as the breakfast bar with integrated wine racks to the kitchen, the choice of seating areas (to the lounge and main living space) and the practical entrance with boot seat and coat hooks.



























